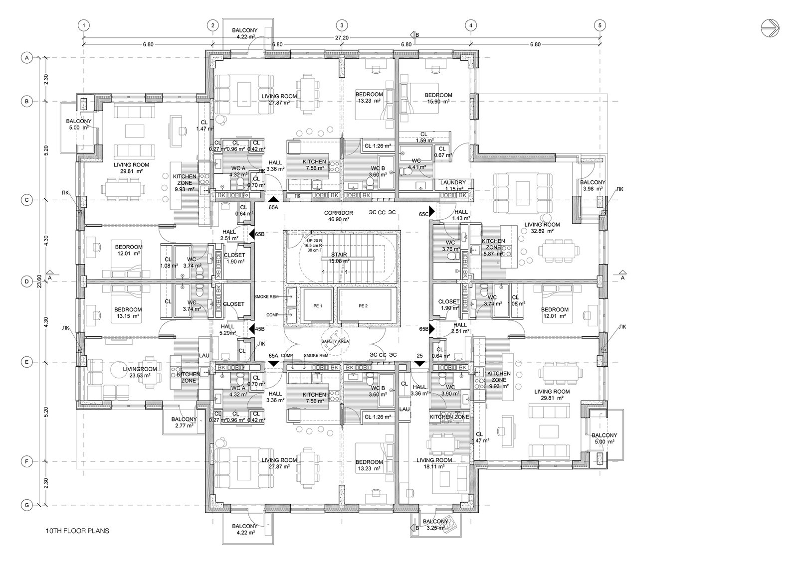
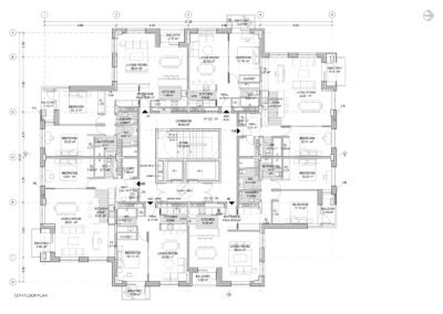
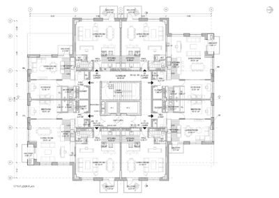
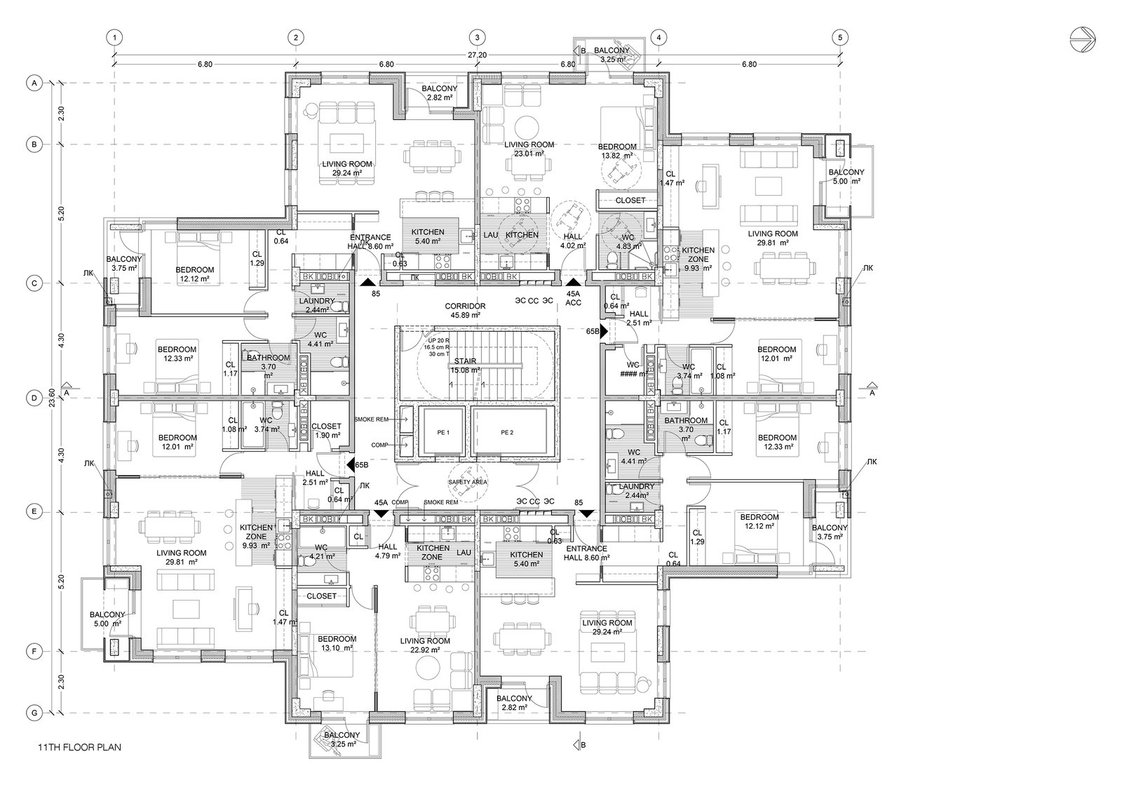
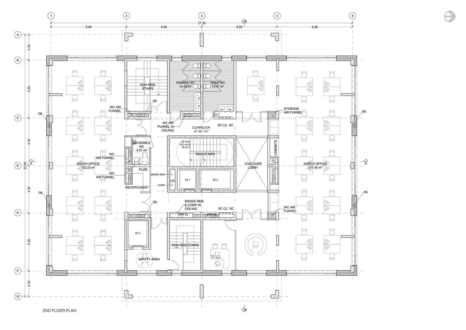
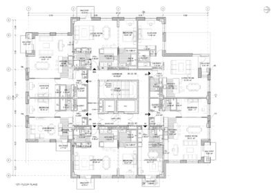
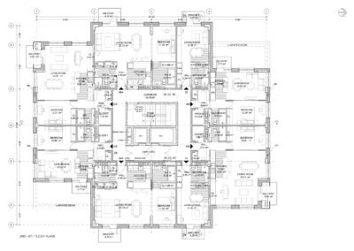
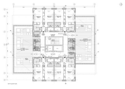
IMÁGENES PLANOS Arquitecto Spain Ofrecemos servicios completos de diseño arquitectónico y gestión de proyectos desde el concepto inicial hasta la finalización de la construcción. info@salgadoarchitect.com 620 070 182